Property Features
- Access: 1.8km WNW of JR Hakuba Station
- Construction: 2-Storey Wooden Frame Galvalume Roof
- Drinking Water: Town Water
- Electricity: Chubu
- Land Category: Residential
- Max Floor-Area Ratio: 200%
- Max Floor-Area Ratio: 60%
- Road Facing: Public Road
- Sewage: Hakuba Community Sewage Service
- Zoning: Unspecified








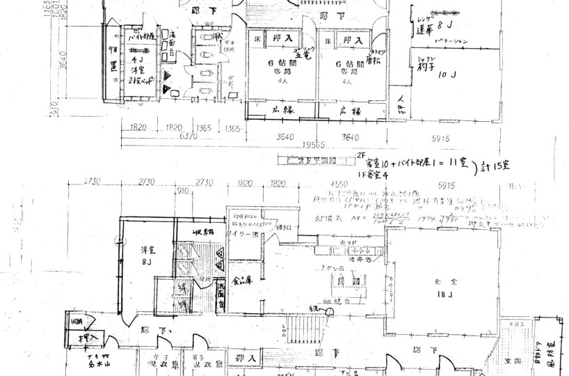
Property Descriptions:
– 14 guest rooms with tatami floor
– 2 toilet rooms with 8 toilet bowls
– 2 bathrooms
– 1 dining space and commercial kitchen
– ski drying room
The boiler needs to be fixed.
There is a small warehouse on #5285-3 (not shown on photo).
Land Size
#5286-3 Hokujo: 266.37 sqm
#5287 Hokujo: 364.54 sqm
#5291-1 Hokujo: 199.53 sqm
#5291-3 Hokujo: 14.64 sqm
#5293 Hokujo: 266.71 sqm
Total: 845.42 sqm (336.31 tsubo)
Map
powered by 
What's Nearby?
Restaurants
- Ohyokkuri Happō Honten (0.36 km)3 reviews
- Maeda (0.21 km)4 reviews
- Izakaya Kaz (0.39 km)3 reviews
Stores
- Patagonia Hakuba Outlet (1.43 km)1 reviews
- ベルクトール丸北 (0.22 km)0 reviews
- LAWSON Shinshu Hakuba Happo (0.56 km)0 reviews














